Reforma integral de un pequeño apartamento
Proyecto
Cliente
Particular
Año
2023
Este pequeño apartamento de 38m2 cerca de la Gran Vía en Madrid, fue adquirido como inversión por unos clientes nuestros habituales.
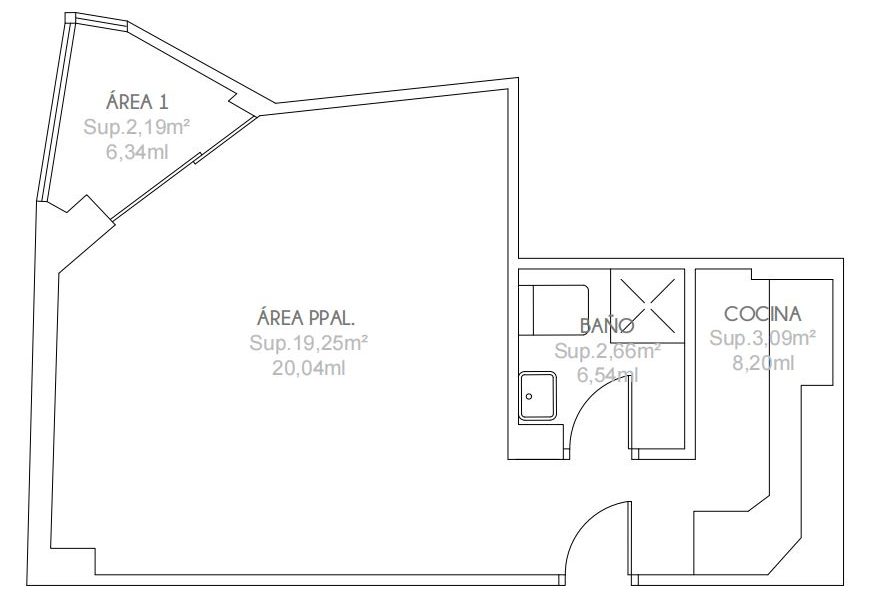
Se trata como en todo este tipo de proyectos y obras, de sacarle partido a espacios pequeños, invirtiendo lo mínimo y aprovechando al máximo todos los recursos. En este caso partíamos de un pequeño estudio con salón-dormitorio, cocina independiente, un cuarto de baño y una pequeña terraza ya acristalada.
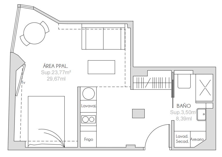
Propusimos trasladar el cuarto de baño al lugar donde inicialmente estaba la cocina. El resto de la casa, hall con armario, cocina, salón y dormitorio, dejarlo todo abierto, incorporando a ese espacio la pequeña terraza que se convertiría en el comedor.
Nos pareció importante que el salón y el dormitorio estuvieran bien definidos. Aunque por la configuración de la vivienda no era posible hacer un dormitorio independiente, por falta de ventana. Lo que teníamos claro era que no queríamos un salón con un sofá-cama que se convirtiera en dormitorio por la noche.
Levantando un tabique de separación con la parte trasera de la cocina, creamos un rincón en el que se podía colocar una cama, que quedaba escondida desde la entrada, con lo que ya teníamos el dormitorio. En la zona más amplia colocamos el sofá, ya teníamos salón, y en la zona de la terraza colocamos una mesita con un par de sillas y ya teníamos comedor. Además de una cocina completa y un amplio hall con un buen armario.
Se sanearon todas las instalaciones, se alisaron paredes y se pintó en blanco para dar mayor luminosidad. En el suelo, colocamos un laminado color roble. Diseñamos cuidadosamente la iluminación para crear diferentes ambientes en ese espacio tan pequeño, y en un lateral del salón alicatamos, con un chapado de ladrillo visto de aspecto antiguo, para dar un poco más de carácter y calidez.
Pocos muebles, modernos y ligeros, y pocos elementos decorativos. En definitiva es un apartamento para alquiler a media estancia. Pero el resultado es contemporáneo y funcional, muy adaptado a lo que nuestros clientes buscaban, tanto en diseño como en el precio final del proyecto, reforma y amueblamiento.
Plano original de la vivienda
Plano reformado de la vivienda
